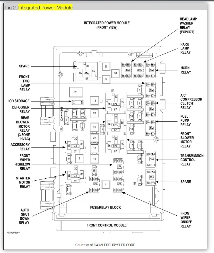
2017 Chrysler Pacifica Fuse Box Location

In this article you will find fuse box diagrams of chrysler pacifica 2017 2018 and 2019 including hybrid versions get information about the location of the fuse panels inside the car and learn about the assignment of each fuse fuse layout.
2017 chrysler pacifica fuse box location. Do not insert any other object in the power outlets as. The video above shows how to replace blown fuses in the interior fuse box of your 2005 chrysler pacifica in addition to the fuse panel diagram location. The fuses are grouped into a controller located in the. Sorry for the interruption.
Electrical components such as your map light radio heated seats high beams power windows all have fuses and if they suddenly stop working chances are you have a fuse that has blown out. The minivan chrysler pacifica ru is available from 2017 to the present. Power outlets are designed for accessory plugs only. Electrical components such as your map light radio heated seats high beams power windows all have fuses and if they suddenly stop working chances are you have a fuse that has blown out.
The video above shows how to replace blown fuses in the interior fuse box of your 2004 chrysler pacifica in addition to the fuse panel diagram location. This center contains car. Chrysler pacifica electrical problemstimp issuesfuse box diagram ground wires idle up and down chrysler idle up and down. Chrysler 300 fuse box locations.
Electrical components such as your map light radio heated seats high beams power windows all have fuses and if they suddenly stop working chances are you have a fuse that has blown out. The video above shows how to replace blown fuses in the interior fuse box of your 2017 chrysler pacifica in addition to the fuse panel diagram location. Chrysler pacifica hybrid 2017 fuse box diagram. Power outlets are designed for accessory plugs only.
Pacifica hybrid 2017 fuse box. Compartment near the battery. We have been receiving a large volume of requests from your network.