2000 Acura Rl Wiring Diagram Schematic

How to read interpret wiring diagrams.
2000 acura rl wiring diagram schematic. One of the most time consuming tasks with installing a car stereo car radio car speakers car amplifier car navigation or any mobile electronics is identifying the correct wires for a 2000 acura rl. 1994 1996 acura integra engine schematic 1998 acura integra gs r coupe 16 ewd acura integra ewd starting system of 1990 acura integra wiring diagram. Any user assumes the entire risk as to the accuracy and use of this information. 2000 acura rl engine diagram thanks for visiting our site this is images about 2000 acura rl engine diagram posted by maria rodriquez in 2000 category on oct 17 2019.
Some acura car manuals pdf wiring diagrams are above the page. Acura car radio stereo audio wiring diagram autoradio connector wire installation schematic schema esquema de conexiones stecker konektor connecteur cable shema car stereo harness wire speaker pinout connectors power how to install. Acura el 1997 2000 service manual. Acura is the north american branch of the group honda specializing in the production of executive and sports cars.
Terminal and harness assignments for individual connectors will vary depending on vehicle equipment level model and market. Acura coupes and sedans 1994 2000 repair information. Air bag supplemental restraint system. The birth of the brand acura decided to attribute to 1986 when assembly plants and the companys sales network were opened in the united states.
Acura el 1997 2000 service manual. Whether your an expert acura rl car alarm installer acura rl performance fan or a novice acura rl enthusiast with a 2000 acura rl a acura rl car alarm wiring diagram can save yourself a lot of time. You can also find other images like acura wiring diagram acura parts diagram acura replacement parts acura electrical diagram acura repair manuals acura engine diagram acura engine scheme diagram acura wiring harness. Autozone repair guide for your chassis electrical wiring diagrams wiring diagrams.
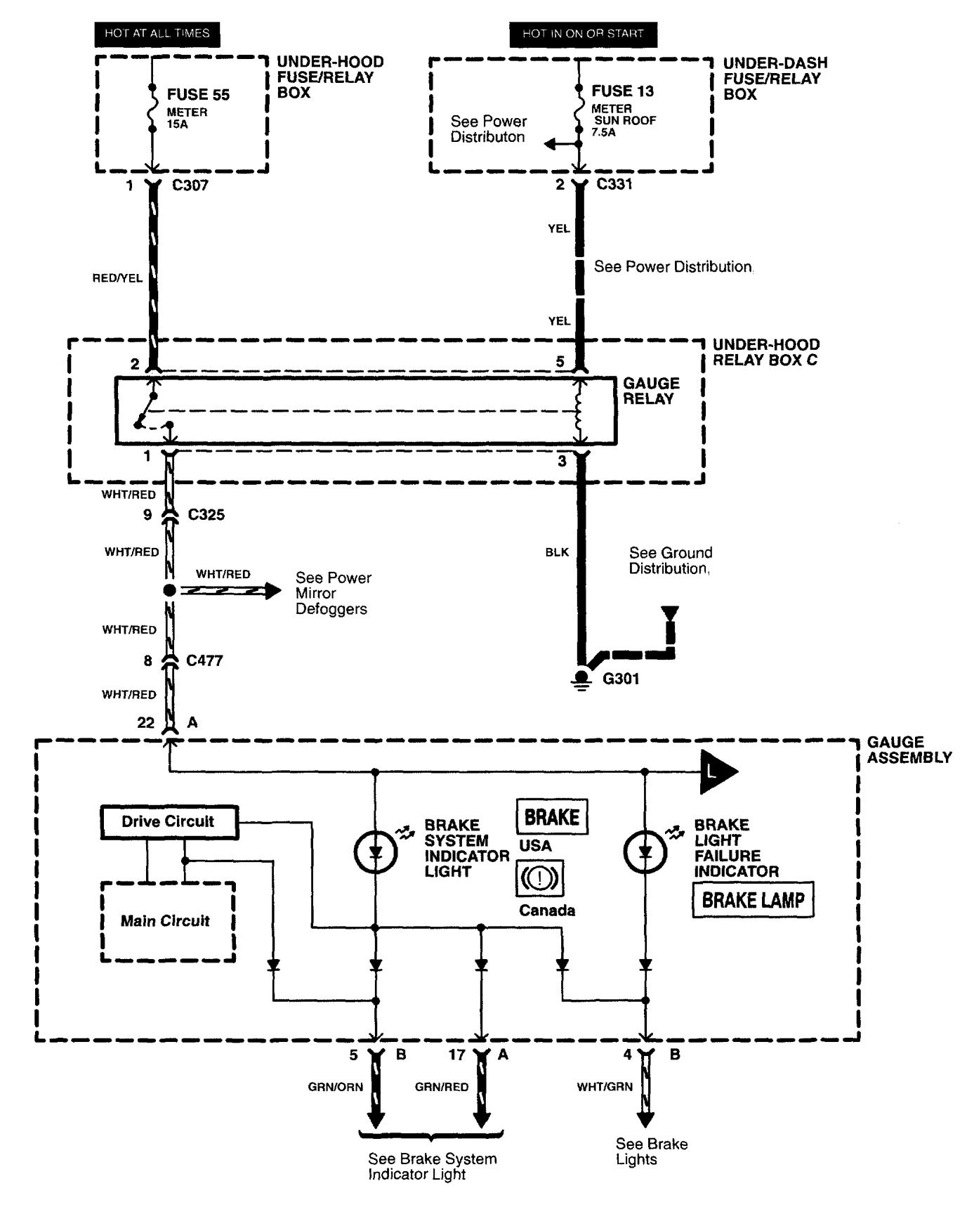
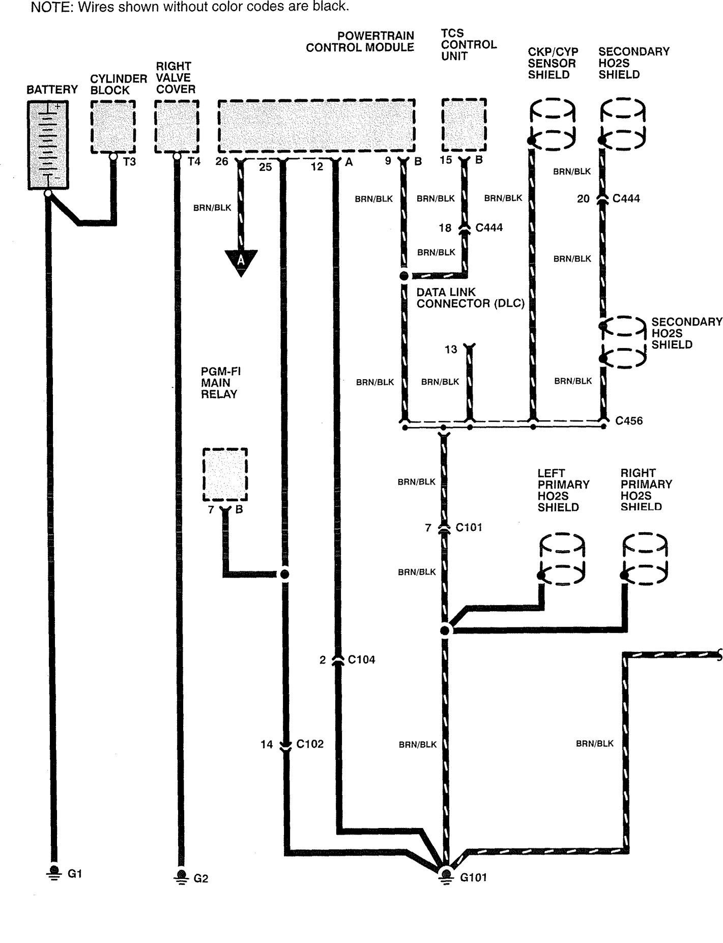
Whether your an expert installer or a novice enthusiasts with a 2000 acura rl an automotive wiring diagram can save yourself time and headaches. Acura rl electrical wiring diagrams ewd. 2000 acura rl 4dr sedan wiring information. Acura car radio wiring diagrams.
Your source for acura wire information wiring information technical help for your new or used vehicle acura technical wiring diagrams wire information wirediagram. One of the most time consuming tasks with installing an after market car alarm car security car read more read more. Car radio wire diagram stereo wiring diagram gm radio wiring diagram. Please verify all wire colors and diagrams before applying any information.
Acura wire information wire info wiring information wiring info color codes technical wiring diagrams.